Description
LE CHESNAY – 3 pièces 2 chambres de 64m2 + Box
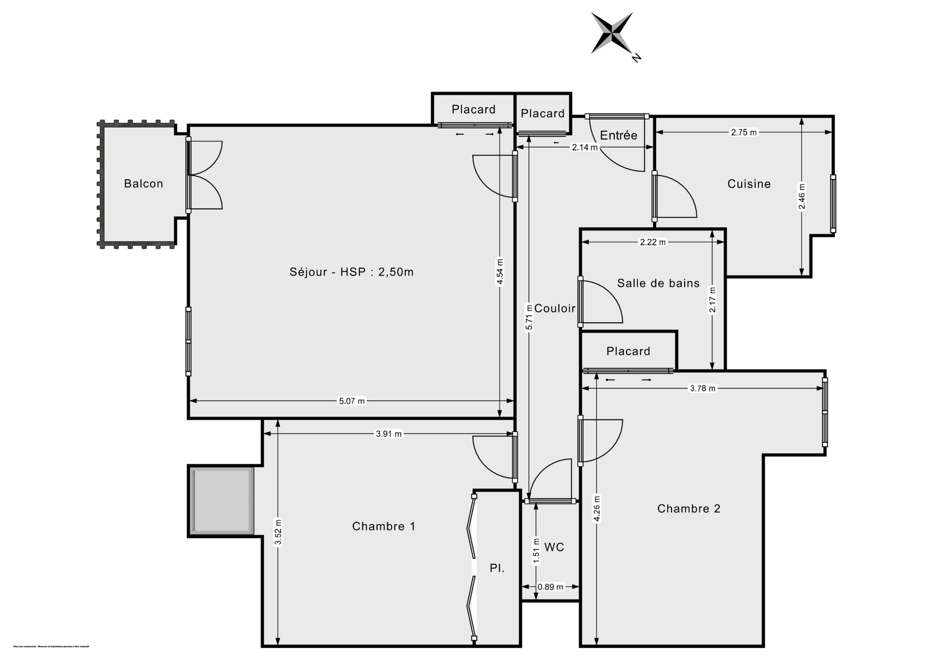
Je vous propose à la vente en exclusivité cet appartement de 3 pièces de 64 m² localisé Rue Caruel de Saint-Martin, Le Chesnay-Rocquencourt.
Situé au dernier étage d’un charmant immeuble de deux étages construit dans les années 1995, cet appartement traversant de 3 pièces offre un cadre de vie agréable et paisible. Ce bien se distingue par son atmosphère calme et ensoleillée.
Emplacement :
Environnement extrêmement calme, propice à la tranquillité. Situé dans un quartier recherché, cet appartement offre un cadre de vie agréable, à proximité de toutes les commodités de la rue de Versailles. Commerces et transports en commun en direction de Versailles sont facilement accessibles.
Caractéristiques principales :
Dernier étage d’un immeuble de deux étages avec ascenseur.
Surface habitable : 64 m²
Pièces : 3 pièces, dont 2 chambres
État général : Très bon
Agencement :
Une entrée accueillante donne accès à l’ensemble des pièces.
La cuisine séparée, aménagée et équipée, offre un espace fonctionnel pour la préparation des repas.
Un séjour agréable de 23 m² exposé Sud-Est sans vis-à-vis.
Une salle de bains
Deux chambres lumineuses bénéficiant d’une double exposition Sud-Est et Nord-Ouest.
Des toilettes séparées pour plus de commodité.
Luminosité et Exposition :
L’appartement profite d’une double exposition, offrant une luminosité optimale tout au long de la journée.
Un balcon de 2 m², accessible depuis le séjour, permet de profiter des beaux jours.
Équipements supplémentaires :
Fenêtres en double vitrage dans l’ensemble de l’appartement
Rangements intégrés
Volets roulants
Eau chaude et chauffage individuel électrique
Emplacement de parking libre dans la résidence et un box privatif
Une cave aménagée
Charges : 200€/mois
Taxe Foncière : 1383€/an
Cet appartement est une opportunité rare sur le marché immobilier, offrant un cadre de vie confortable dans un environnement paisible. Pour plus d’informations ou pour organiser une visite, n’hésitez pas à me contacter.
Pascal NICOLE agent immobilier à Le Chesnay : 06 88 24 99 70
Contactez moi ou prenez rendez-vous dès maintenant pour obtenir des conseils professionnels et bénéficier de mes services.

















